9:30~ 19:00(火・水休)
MENU

買いたい

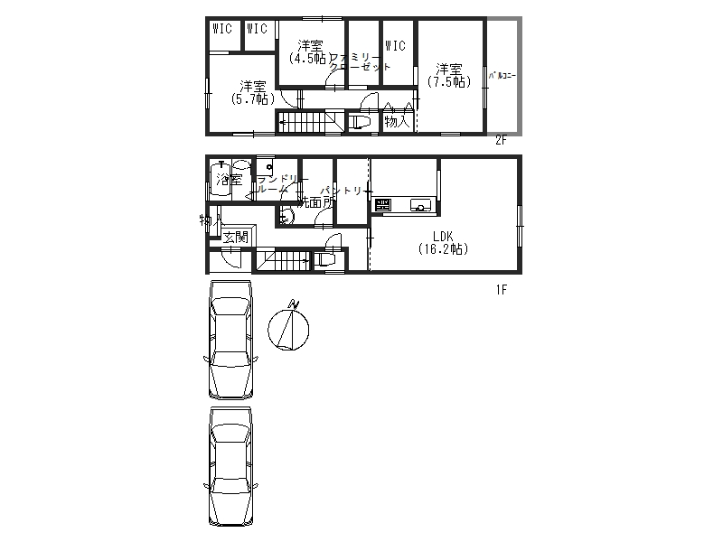
柏原市旭ヶ丘1丁目★新築3LDK

2025-10-16
物件番号:3797

おすすめポイント

近鉄大阪線「河内国分駅」徒歩7分の閑静な住宅地
ファミリークローゼットや各居室にウォークインクローゼット
キッチンにもパントリーと収納力たっぷりな新築戸建て
南向きで、駐車2台可も嬉しい♪

物件概要

最寄・徒歩近鉄大阪線「河内国分駅」徒歩7分
所在地大阪府柏原市旭ヶ丘1丁目
価格/土地面積3280万円/128.86㎡
管理費専有面積101.65㎡
種別構造木造
間取3LDK
築年月
設備システムキッチン、カウンターキッチン、洗浄便座、トイレ2ヶ所、洗面所独立、床下収納、24時間換気システム、浄化槽、IHクッキングヒータ、個別プロパン、公営水道、個別浄化槽、浄化槽

その他情報

1階面積 2階面積 3階面積
駐車場2台 建ぺい率60% 容積率150%
地目宅地 用途地域第一種低層住居専用 道路幅員4.7m
小学校区旭ヶ丘小学校 中学校区玉手中学校 取引態様仲介

この物件に関する
お問い合わせは

お問い合わせはこちらから

お電話でお問い合わせ
9:30~ 19:00(火・水休)
WEBからお問い合わせ